Идеальный пентхаус в ЖК «Парус» с видом на Жигулевские горы
151 кв. м
Если письмо отображается неправильно, посмотрите его по ссылке.
Объект в цифрах
25–25 этажи
151 кв. м
Общая площадь
71,4 кв. м
Площадь первого этажа
3,6 м
Высота потолков на втором уровне
79,4 м
Площадь второго этажа
Потрясающие виды
Из любой комнаты открывается панорамный вид на Волгу и Жигулевские горы
Двухуровневая квартира в ЖК «Парус» — это собственный дом на берегу Волги с панорманым видом для тех, кто ценит комфорт, пространство и время, проведенное с близкими.

Комфортная планировка с разделенными общественной и приватной зонами.
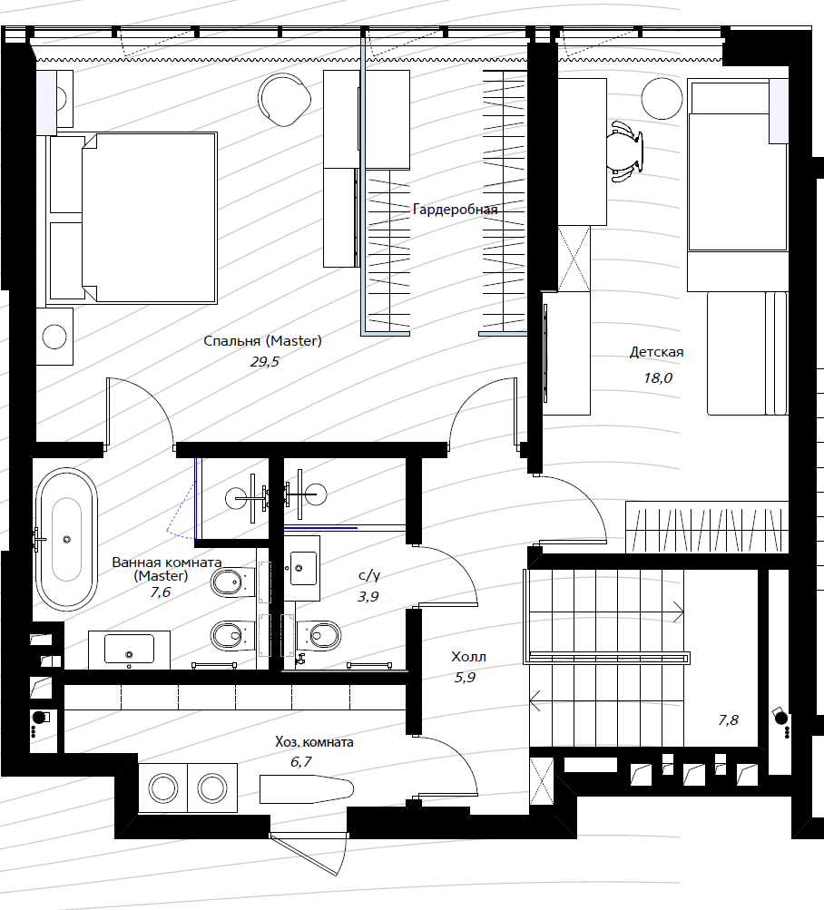
Первый уровень
Центром притяжения всей квартиры становится просторная гостиная с кухонной зоной.

Вместительная 9-метровая гардеробная возьмет на себя и роль места хранения сезонных вещей, и прихожей.

Комфортный кабинет легко может сменить функцию под текущие задачи и стать, например, гостевой комнатой или «берлогой» для взрослого ребенка.
Второй уровень
Второй уровень — приватная зона. Просторная мастер-спальня обеспечена собственной ванной комнатой и гардеробной, это делает подготовку к утреннему и вечернему туалету автономной и приятной.

Детская комната имеет собственный санузел и спланирована так, что ребенок может быть легко предоставлен сам себе.

Хозяйственная комната позволит «спрятать» все бытовые процессы и предметы с глаз долой и поддерживать порядок и чистоту в квартире без особых усилий.
Техническая готовность
Квартира полностью готова к ремонту
Впереди у вас только приятные хлопоты по утверждению дизайн-проекта, выбору мебели и предметов интерьера, так как самую сложную и трудозатратную часть работы мы уже выполнили.

На всей площади завершена предчистовая отделка — выровнены и оштукатурены стены, сделана стяжка пола и произведена разводка электричества. Для дальнейших чистовых работ уже готов проект со всеми расчетами и рабочими чертежами.
Комфортная среда
Пентхаус в ЖК «Парус» — редкий случай, когда двор, дом и квартира обладают равновесными преимуществами и формируют единую комфортную среду проживания.
Двор ЖК «Парус» имеет два уровня, на верхнем расположены детские площадки, а на нижнем -лаунж зона для единения с природой.
Места общего пользования
Просторный холл, площадью 240 кв. м является достойной welcome-зоной для жильцов и гостей жилого комплекса, а места общего пользования, благодаря качеству отделки, становятся дополнительной полезной площадью каждой квартиры.

Двухуровневый паркинг, оборудованный 62 камерами видеонаблюдения и широкими прозрачными воротами, формирует дополнительные преимущества для идеального начала и окончания нового дня.
Скачать презентацию
Цена пентхауса — по запросу
Уточнить детали и договориться о просмотре можно по телефону +7 906 341 23 85 (Алла)
Позвонить
Если письмо отображается неправильно, посмотрите его полную версию. Вы можете отписаться от рассылки, если не хотите получать наши письма.